Reforma de vivienda en Avd. de Dílar. Granada
|
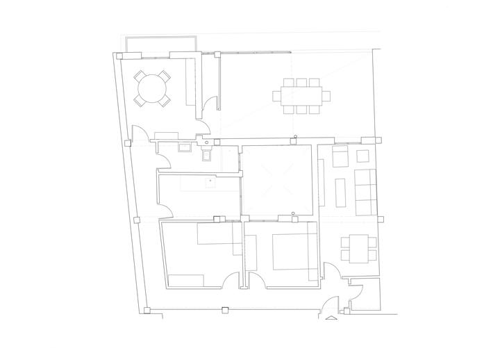
Esta obra consiste en la reforma integral de una vivienda en una penúltima planta, pero con características de un ático, ya que la vivienda superior esta escalonada con respecto a esta. El proyecto partió de la base de la importancia de la terraza, y en un principio se plantearon dos zonas, una de invierno y otra de verano alrededor del patio. Se elevaba el suelo de toda la vivienda hasta el nivel de la terraza, creando zonas de almacenaje en el suelo y permitiendo la posibilidad de ocultar la cama en el mismo, de manera que en una fiesta se pudiera abrir todo y dejar como un único espacio el dormitorio, la terraza y el comedor. Conforme fuimos recibiendo presupuestos de las empresas constructoras fuimos modificando cosas para abaratarlos y una de las cosas que se perdió fué la elevación del suelo. Una vez comenzada la obra, cuando vimos todo el piso con la tabiquería demolida y abierto, le dimos la vuelta a la casa, pasando el salón-comedor-cocina a la parte de la izquierda del patio y los dormitorios a la derecha, esto permitía una relación mucho más directa entre el salón y la terraza que al final se convierte, como buscabamos, en la protagonista del piso. Promotor: Iván González González Proyecto: Bruno Herrera González Dirección de Obra: Bruno Herrera González Asesoramiento: José Ramón González González, arquitecto. Constructora: Construcciones y Rehabilitaciones WZ Moneder, S.L. Año de terminación: 2015 |






